JZD-202中间继电器开孔尺寸及主要性能-上海上继科技有限公司
发布时间:2019-08-05
一、JZD-202静态中间继电器
概述
中间继电器(intermediate relay):用于继电保护与自动控制系统中,以增加触点的数量及容量。 它用于在控制电路中传递中间信号。中间继电器的结构和原理与交流接触器基本相同,与接触器的主要区别在于:接触器的主触头可以通过大电流,而中间继电器的触头只能通过小电流。所以,它只能用于控制电路中。 它一般是没有主触点的,因为过载能力比较小。所以它用的全部都是辅助触头,数量比较多。新国标对中间继电器的定义是K,老国标是KA。一般是直流电源供电。少数使用交流供电。
二、JZD-202静态中间继电器主要性能
常规100V和220V的电磁型中间继电器所用导线很细,匝数也多,造成容易断线,可靠性低,动作时间和返回时间本系列中l间继电器采用静态电子控制回路控制多个密封进口中间同时导通或断开。 具有以下性能和特点
1、采用高性能密封继电器、防潮、防尘、不断线、可靠性高。
2、动作电压准确,返回系数高,无抖动,功耗低,多个特点同时动作或返回(可控性100%) 。
3、继电器动作后有灯光指示、有电源指示。
4、继电器的电气寿命和机械寿命长。
5、绝缘耐压水平高。触点容量大,触点接触电阻小。
6、抗干流特性好,可使用于强干扰或电源电压质量很差的场所
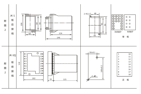
三、JZD-202静态中间继电器
外形及开孔尺寸

四、JZD-202静态中间继电器
型号含义
静态中间继电器有JZJ(HZJ)、JZY(HZY)、JZL(HZL)、 JZB (HZB)、JZS(HZS)等型号
其中,JZ和HZ表示静态中间继电器。第三位字母:J表示交流工作电压,Y表示直流工作电压,L表示电流工作,B表示带保持,S表示带延时)
随着继电器所用场合的不断增加,继电器的工艺也在不断改进,静态中间继电器也逐渐朝着轻巧,安装方便的方向发展。RZY、RZYJ、RZF、RZE系列欧规标准的导轨式静态中间继电器,壳体体积小,重量只有200-350g、可无限拼装,触点易于扩展,可直接安装在开关柜35mm导轨条上,从而提高了安装密度,方便接线。
五、JZD-202静态中间继电器
内部接线图及外引接线图

上海上继科技有限公司(专注中间继电器生产厂家)销售热线:021-57233089 QQ:1932551438
(以上内容仅供参考,上海上继科技有限公司有最终解释权}
更多继电器精彩文章→JZY-216X中间继电器接线图及技术条件