JZD-407静态中间继电器接线图及概述-上海上继科技有限公司
发布时间:2019-08-06
一、JZD-407静态中间继电器
概述
中间继电器(intermediate relay):用于继电保护与自动控制系统中,以增加触点的数量及容量。 它用于在控制电路中传递中间信号。中间继电器的结构和原理与交流接触器基本相同,与接触器的主要区别在于:接触器的主触头可以通过大电流,而中间继电器的触头只能通过小电流。所以,它只能用于控制电路中。 它一般是没有主触点的,因为过载能力比较小。所以它用的全部都是辅助触头,数量比较多。新国标对中间继电器的定义是K,老国标是KA。一般是直流电源供电。少数使用交流供电。
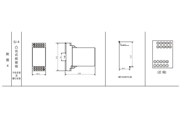
二、JZD-407静态中间继电器
外形及开孔尺寸

三、JZD-407静态中间继电器
特点
1.静态中间继电器采用线圈电压较低的多个优质密封小型继电器组合而成,防潮、防尘、不断线,可靠性高,克服了电磁型中间继电器导线过细易断线的缺点。
2.功耗小,温升低,不需外附大功率电阻,可任意安装及接线方便。
3.继电器触点容量大,工作寿命长。
4.继电器动作后有发光管指示,便于现场观察。
5.延时只需用面板上的拨码开关整定,延时精度高,延时范围可在0.02-5.00S任意整定
四、JZD-407静态中间继电器
用途
可调延时中间继电器用于直流或交流操作的各种保护和自动控制线路中,作为辅助继电器,以增加触点数量和触点容量。可根据需要自由调节通电延时或断电延时的时间。
五、JZD-407静态中间继电器
内部接线图及外引接线图

上海上继科技有限公司(专注中间继电器生产厂家)销售热线:021-57233089 QQ:1932551438
(以上内容仅供参考,上海上继科技有限公司有最终解释权}
更多继电器精彩文章→DL-43电流继电器接线图及开孔尺寸