JZD-409静态中间继电器特点及用途-上海上继科技有限公司
发布时间:2019-08-06
一、JZD-409静态中间继电器
特点
1.静态中间继电器采用线圈电压较低的多个优质密封小型继电器组合而成,防潮、防尘、不断线,可靠性高,克服了电磁型中间继电器导线过细易断线的缺点。
2.功耗小,温升低,不需外附大功率电阻,可任意安装及接线方便。
3.继电器触点容量大,工作寿命长。
4.继电器动作后有发光管指示,便于现场观察。
5.延时只需用面板上的拨码开关整定,延时精度高,延时范围可在0.02-5.00S任意整定。
二、JZD-409静态中间继电器
用途
可调延时中间继电器用于直流或交流操作的各种保护和自动控制线路中,作为辅助继电器,以增加触点数量和触点容量。可根据需要自由调节通电延时或断电延时的时间。
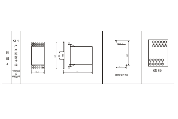
三、JZD-409静态中间继电器
外形及开孔尺寸

四、JZD-409静态中间继电器
内部接线图及外引接线图

五、JZD-409静态中间继电器
电磁兼容
A,震荡波抗扰度检验符合IEC60255-22-1:1988的规定:III级;
B,静电放电抗扰度检验符合IEC60255-22-2:1996的规定:III级;
C,射频电磁场辐射抗扰度检验符合IEC60255-22-2:1989的规定:III级;
d,电快速瞬变脉冲群抗扰度检验符合IEC60255-22-4:1992的规定:IV级;
e,浪涌抗扰度检验符合IEC60255-22-5:2002的规定:III级;
f,射频传导抗扰度检验符合IEC60255-22-6:2001的规定:III级;
g,工频抗扰度检验符合IEC50255-22-7:2003的规定:A级;
h,工频磁场抗扰度检验符合IEC61000-4-8:1993的规定:V级;
i,脉冲磁场抗扰度检验符合IEC61000-4-9:1993的规定:IV级;
j,阻尼震荡磁场抗扰度检验符合IEC61000-4-10:1993的规定:IV级;
K,谐波电流发射限值检验符合IEC61000-3-2:2001的规定:A级;
l,电压波动和闪烁的限制检验符合IEC61000-3-3:1994的规定;
m,传导发射限值检验符合IEC60255-25:2000的规定。
上海上继科技有限公司(专注中间继电器生产厂家)销售热线:021-57233089 QQ:1932551438
(以上内容仅供参考,上海上继科技有限公司有最终解释权}
更多继电器精彩文章→JZD-214X静态中间继电器用途及接线图