JZD-419静态中间继电器特点及型号含义-上海上继科技有限公司
发布时间:2019-08-06
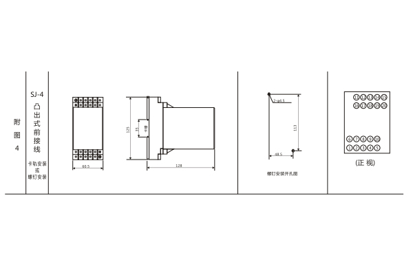
一、JZD-419静态中间继电器
外形及开孔尺寸

二、JZD-419静态中间继电器
内部接线图及外引接线图

三、JZD-419静态中间继电器
结构原理
⒈线圈装在"U"形导磁体上,导磁体上面有一个活动的衔铁,导磁体两侧装有两排触点弹片。在非动作状态下触点弹片将衔铁向上托起,使衔铁与导磁体之间保持一定间隙。当气隙间的电磁力矩超过反作用力矩时,衔铁被吸向导磁体,同时衔铁压动触点弹片,使常闭触点断开常开触点闭合,完成继电器工作。当电磁力矩减小到一定值时,由于触点弹片的反作用力矩,而使触点与衔铁返回到初始位置,准备下次工作。
⒉本继电器的"U"形导磁体采用双铁心结构,即在两个边柱上均可装设线圈。对于DZY、DZL和DZJ型只装一个线圈,而对于DZB,DZS,DZK型可根据需要在另一个铁心上装以保持线圈或延时用阻尼片等。从而使线圈类型大不相同的继电器都通用一个导磁体。
四、JZD-419静态中间继电器
特点
1.静态中间继电器采用线圈电压较低的多个优质密封小型继电器组合而成,防潮、防尘、不断线,可靠性高,克服了电磁型中间继电器导线过细易断线的缺点。
2.功耗小,温升低,不需外附大功率电阻,可任意安装及接线方便。
3.继电器触点容量大,工作寿命长。
4.继电器动作后有发光管指示,便于现场观察。
5.延时只需用面板上的拨码开关整定,延时精度高,延时范围可在0.02-5.00S任意整定。
五、JZD-419静态中间继电器
型号含义
静态中间继电器有JZJ(HZJ)、JZY(HZY)、JZL(HZL)、 JZB (HZB)、JZS(HZS)等型号
其中,JZ和HZ表示静态中间继电器。第三位字母:J表示交流工作电压,Y表示直流工作电压,L表示电流工作,B表示带保持,S表示带延时)
随着继电器所用场合的不断增加,继电器的工艺也在不断改进,静态中间继电器也逐渐朝着轻巧,安装方便的方向发展。RZY、RZYJ、RZF、RZE系列欧规标准的导轨式静态中间继电器,壳体体积小,重量只有200-350g、可无限拼装,触点易于扩展,可直接安装在开关柜35mm导轨条上,从而提高了安装密度,方便接线。
上海上继科技有限公司(专注中间继电器生产厂家)销售热线:021-57233089 QQ:1932551438
(以上内容仅供参考,上海上继科技有限公司有最终解释权}
更多继电器精彩文章→JZD-218X静态中间继电器开孔尺寸及用途