JZ-S/443静态中间继电器用途及技术条件-上海上继科技有限公司
发布时间:2019-08-09
一、JZ-S/443静态中间继电器
用途
可调延时中间继电器用于直流或交流操作的各种保护和自动控制线路中,作为辅助继电器,以增加触点数量和触点容量。可根据需要自由调节通电延时或断电延时的时间。
二、JZ-S/443静态中间继电器技术条件
1、环境基准条件
环境温度: 20°C±2°C
相对湿度:45%~74%
大气压力:80Kpa~106Kpa
2、正常使用条件
环境温度:-25°C~+40°C
环境相对湿度:不大于90%
大气压力:80Kpa~110Kpa
存储和运输过程中的极限温度: -25°C~75°C
使用地点的海拔高度:不高于2500米
使用环境的周围介质无爆炸危险品;不含有腐蚀性气体;所含导电尘埃的浓度不应使绝缘水平降低到允许值以下。
3、 继电器额定值 额定电压值:48V, 110V, 220V, AC, DC, 380VAC。
4、触点容量 在电压不大于250V,功率因数cosΦ为1.0的交流电路中,可分断10A。
直流:普通型:接通DC220V, 10A;断开DC220V,τ=5mS, 50W负载。
B型:接通DC220V, 10A;断开DC250V, τ=5mS, 500W大容量角空点,极限容量为1500W。
5、 保持值 0.7 ~ 1.2倍额定电压 JZ-系列快速中间继电器动作时间和返回时间不大于15mS。
6、 功耗 在额定电压下不大于6W。
7、绝线电阻 用1000V揺表测量各引出端子对外壳锁紧螺钉之间绝缘电阻不小于10MΩ。8绝缘电压 各引出端子对外壳锁紧螺钉能承受工频2000V,同组触点之间能承受工频1000V,历时一份钟试验,无击穿。
8、电寿命 A型: DC250V回路,切断电流,τ=5mS, 50W, 10⁴次以上;
B型: DC250V回路,切断电流τ=5mS, 500W, 104次以上; 1500W, 103次。
9、机械寿命 触点无负荷300万次以上。
三、JZ-S/443静态中间继电器
电磁兼容
A,震荡波抗扰度检验符合IEC60255-22-1:1988的规定:III级;
B,静电放电抗扰度检验符合IEC60255-22-2:1996的规定:III级;
C,射频电磁场辐射抗扰度检验符合IEC60255-22-2:1989的规定:III级;
d,电快速瞬变脉冲群抗扰度检验符合IEC60255-22-4:1992的规定:IV级;
e,浪涌抗扰度检验符合IEC60255-22-5:2002的规定:III级;
f,射频传导抗扰度检验符合IEC60255-22-6:2001的规定:III级;
g,工频抗扰度检验符合IEC50255-22-7:2003的规定:A级;
h,工频磁场抗扰度检验符合IEC61000-4-8:1993的规定:V级;
i,脉冲磁场抗扰度检验符合IEC61000-4-9:1993的规定:IV级;
j,阻尼震荡磁场抗扰度检验符合IEC61000-4-10:1993的规定:IV级;
K,谐波电流发射限值检验符合IEC61000-3-2:2001的规定:A级;
l,电压波动和闪烁的限制检验符合IEC61000-3-3:1994的规定;
m,传导发射限值检验符合IEC60255-25:2000的规定。
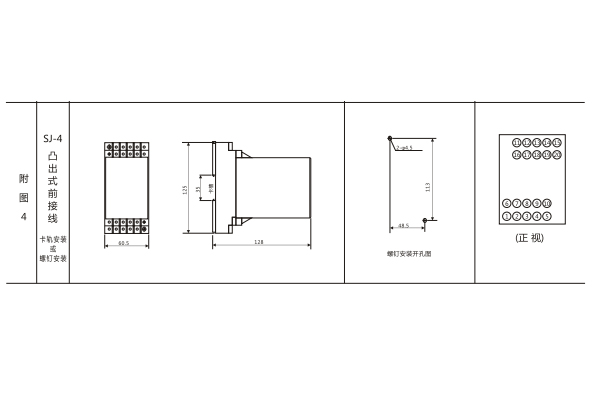
四、JZ-S/443静态中间继电器
外形及开孔尺寸

五、JZ-S/443静态中间继电器
内部接线图及外引接线图

JL8-22电流继电器技术数据及开孔尺寸
下一篇:JL8-23电流继电器接线图及安装尺寸