SJ-11A/13时间继电器型号含义及主要参数-上海上继科技有限公司
发布时间:2019-09-04
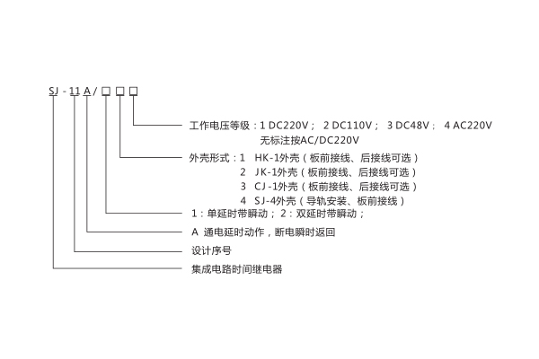
一、SJ-11A/13集成电路时间继电器型号命名及含义

二、SJ-11A/13集成电路时间继电器主要技术参数
1 延时范围和级差 延时范围: 0.02S-9.99S、 0.1S-99.9S、1M-999M,无标注按0.1S-99.9S供货。
2 延时整定误差 继电器20℃±5℃时,施加额定电压下,继电器延时整定误差(包含一致性):整定值≤100S时,误差<+0.1s;>100S时,误差<±0.1%。
3 返回时间 用切断电路的方法,使继电器断电,继电器触点返回至始位置的时间不大于20mS。
4 电源电压允许变动范围 电源电压允许变动范围为额定电压低0.8~1.1倍。
5 触点容量
继电器输出电路的触点能断开电压不大于250V, 时间常数为5±0.75mS的直流有感负荷电路为80W ; 电压不大于250V的交
流电路(功率因数COSΦ为0.4±0.1)为300VA。继电器可长期接通10A。
6 环境温度 -10℃~+50℃
7 介质强度 继电器各导电端子连在一起对为露的非常电金属部分或外壳之间,能承受2000V(有效值0,50Hz的交流电压,历时1 分钟试验而无绝缘击穿或飞弧现象。
8 绝缘电阻 继电器各导电端子连在一起对外露的飞带电金属部分或外壳之间,用开路电压500V的兆欧表测量其绝缘电阻不小于300MΩ。
9 电寿命继电器触点接于规定容量的电路负荷重,能可靠动作及返回,电寿命为105次。
10 机械寿命 继电器不接负荷能可靠动作及返回,其机械寿命为106次
11 功率消耗 在额定电压下,继电器功率消耗不大于5W。
12 抗干扰性能 继电器的抗干扰负荷DL478-92《静态继电保护及安全自动装置通用技术条件》
三、SJ-11A/13集成电路时间继电器接线图

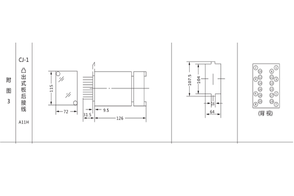
四、SJ-11A/13集成电路时间继电器外形尺寸及开孔尺寸

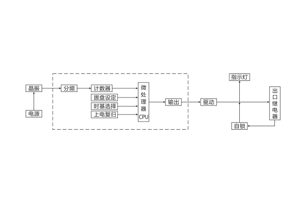
五、SJ-11A/13集成电路时间继电器工作原理
SJ-11A/13集成电路时间继电器采用大规模CMOS专用集成电路。上电瞬间,晶振起振, CUP复位,从零开始正向计数,同时读取拨盘设定值的时基常数;当计数值与设定值同时,输出高电平,驱动三极管,出口继电器动作,且利用触点自保持,以保证不发生抖动;当电源消失,出口继电器则返回,工作原理如下图所示:

公司介绍:上海上继科技有限公司是一家专业从事电力系统继电保护及智能电网电力自动化产品的研发、设计、生产、销售和服务为一体的高科技公司。拥有资深继电保护专家团队和国内**的检测仪器及校验设备。同时还引用国内外先进技术,来进行技术创新。本公司的产品广泛用于电力、工矿、铁路、建筑等国家重大工程输配变电系统上,产品远销东南亚及中东地区。产品通过国家继电保护及自动化设备质量监督检验中心检测,获得ISO-9001国际质量体系认证。“科技创新,诚信务实”是公司的经营理念,本公司以高超的技术支持和对用户高度负责的售后服务赢得了输配电成套企业的信赖,且树立了良好的信誉。
上海上继科技有限公司(专注电力保护继电器生产厂家)销售热线:021-57233089 QQ:1932551438
{以上内容仅供参考,上海上继科技有限公司有最终解释权}
更多继电器精彩文章——单相电力仪表生产厂家简介