JY-25B电压继电器工作原理及生产厂家-上海上继科技有限公司
发布时间:2019-09-16
一、JY-25B电压继电器概述
JY-25B电压继电器用于发电机、变压器和输电线的继电保护装置中,作为过电压保护或低电压闭锁的启动元件。本继电器为集成电路静态型继电器, 精度高、功耗小、动作时间短、返回系数高、整定直观方便、范围宽,且作为低电压继电器使用 无抖动现象, 提供辅助电源后完全可以替代电磁型电压继电器,辅助电源采用开关电源变换,交直流通用,工作范围大,从100-300V均能可靠工作。
JY系列静态电压继电器分为三个系列:JY-10、JY-20、JY-30,可分别替代DJ-100、DY-20C、DY-30等系列电磁型电压继电器。 本继电器采用拨码开关整定电压值, 用倍率开关切换,改变整定值无需校验;整定范围宽,有利于用户压缩库存品种。
二、JY-25B电压继电器工作原理
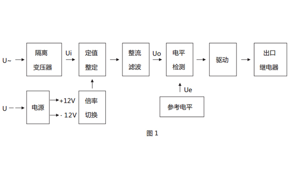
1、继电器原理框图见图1。

2、本继电器为静态型继电器,采用进口集成电路构成;被测量的交流电压 U~经隔离变压器降压后得到与被测电压成正比的电压Ui, 经整定后进行整流,整流后脉冲电压经滤波器滤波,得到与Ui成正比的直流电压Uo,在电平检测中Uo与直流参考电压Ue进行比较,若直流 电压 Uo 低于参考电压,电平检测器输出正信号,驱动出口继电器,则本继电器处于动作状态。反之,不论是过电压继电器或是低电压继电 器,若直流电压 Uo 高于参考电压Ue,电平检测器输出负信号,本继电器处于不动作状态。
三、JY-25B电压继电器生产厂家
上海上继科技有限公司是一家专业从事电力系统继电保护及电力自动化的高新技术企业。公司主要生产各种微机综合保护装置,电力保护继电器、电力仪表等产品。公司集研发、设计、生产、销售和服务于一体,致力于为国内外输配电、水利、城建、能源、矿山、化工客户提供一整套从低压到高压、从硬件到软件的系统级整体解决方案和配套服务。公司总部设在上海,全国各地设有办事机构。
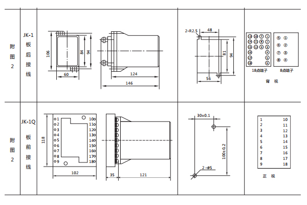
四、JY-25B电压继电器内部接线及外引接线图(正视图)

五、JY-25B电压继电器外形及开孔尺寸

公司介绍:上海上继科技有限公司是一家专业从事电力系统继电保护及智能电网电力自动化产品的研发、设计、生产、销售和服务为一体的高科技公司。拥有资深继电保护专家团队和国内**的检测仪器及校验设备。同时还引用国内外先进技术,来进行技术创新。本公司的产品广泛用于电力、工矿、铁路、建筑等国家重大工程输配变电系统上,产品远销东南亚及中东地区。产品通过国家继电保护及自动化设备质量监督检验中心检测,获得ISO9001国际质量体系认证。“科技创新,诚信务实”是公司的经营理念,本公司以高超的技术支持和对用户高度负责的售后服务赢得了输配电成套企业的信赖,且树立了良好的信誉。
上海上继科技有限公司(专注电力保护继电器生产厂家)销售热线:021-57233089 QQ:1932551438
{以上内容仅供参考,上海上继科技有限公司有最终解释权}
更多继电器精彩文章——RXMH2型大容量中间继电器技术参数及主要用途