JY8-22D电压继电器开孔尺寸及技术要求-上海上继科技有限公司
发布时间:2019-09-21
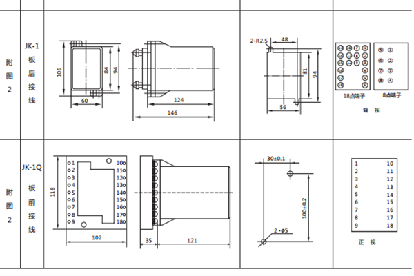
一、JY8-22D电压继电器外形及开孔尺寸

二、JY8-22D电压继电器型号说明

三、JY8-22D电压继电器主要技术要求
电压整定范围
a) A: 1V ~140V(需辅助直流电源);
b) B: 15V~130V ;
c) C: 80V~240V ;
d) D: 180V~440V 。
2.额定辅助直流电压: 48V、110V、220V。
3.功率消耗
a)交流回路功耗:在**整定电压值时,继电器的功耗不大于2.5VA;
b)直流回路功耗:在额定辅助直流电压下,继电器功率不大于4W。
4.直流辅助电压允许变化范围:0.8-1.1倍额定值。
5.动作时间
a)过电压继电器:从0.8倍整定值升至1.2倍整定值时动作时间不大于25ms。
b)低电压继电器:从2倍整定值降至0.8倍整定值时动作时间不大于25ms。
6.返回时间
a)过电压继电器:从1.2倍整定值降至0.8倍整定值时,返回时间不大于25ms。
b)低电压继电器:从0.8倍整定值升至2倍整定值时,返回时间不大于25ms。
7.返回系数:
a)过电压继电器返回系数不小于0.9。
b)低电压继电器返回系数不大于1.1。
8.整定误差:在基准条件下,电压整定误差不大于5%。
9.触点性能: 继电器触点在电压不大于250V,电流不大于2A的直流有感负荷(时间常数为5ms±0.75ms)电路中,断开容量为50W,在电压不大于 250V,电流不大于1A的交流电路中(功率因数为0.4±0.1)断开容量为250VA。
10.绝缘电阻 继电器各电路对外露的非带电金属部分及无电气联系的各回路之间的绝缘电阻应不小于300MΩ。
11.介质强度 继电器各电路对外露的非金属部分之间,以及线圈电路对触点电路之间,应能承受2kV(有效值)、50Hz的交流试验电压,历时1min 试验,应无绝缘击穿或闪络现象。
12.工作条件
a) 使用地点不允许有爆炸危险的介质,周围介质中不含有腐蚀金属和破坏金属的气体及 导电介质,不允许充满水蒸汽及有严重的霉菌 存在;
b) 使用地点不允许有较强的振动和冲击;
c) 使用地点应具有防御雨、雪、风、沙的设备;
d) 使用地点不允许超过1.5mT的外磁感应强度。
13.电气抗干扰继电器应符合GB7261和GB6261《静态型继电器及保护装置的电气抗干扰试验》。
公司介绍:上海上继科技有限公司是一家专业从事电力系统继电保护及智能电网电力自动化产品的研发、设计、生产、销售和服务为一体的高科技公司。拥有资深继电保护专家团队和国内**的检测仪器及校验设备。同时还引用国内外先进技术,来进行技术创新。本公司的产品广泛用于电力、工矿、铁路、建筑等国家重大工程输配变电系统上,产品远销东南亚及中东地区。产品通过国家继电保护及自动化设备质量监督检验中心检测,获得ISO9001国际质量体系认证。“科技创新,诚信务实”是公司的经营理念,本公司以高超的技术支持和对用户高度负责的售后服务赢得了输配电成套企业的信赖,且树立了良好的信誉。
上海上继科技有限公司(专注电力保护继电器生产厂家)销售热线:021-57233089 QQ:1932551438
{以上内容仅供参考,上海上继科技有限公司有最终解释权}
更多继电器精彩文章——JL-13电流继电器技术条件及接线图