HJS(ZSJ)-20直流断电延时继电器技术参数及开孔尺寸-上海上继科技有限公司
发布时间:2019-10-18
一、 HJS(ZSJ)-20直流断电延时继电器用途
HJS(ZSJ)-20直流断电延时继电器用于直流操作的继电保护和自动化电路中,作为直流通电后瞬时动作断电后延时返回的时间元件。
二、HJS(ZSJ)-20直流断电延时继电器生产厂家
上海上继科技有限公司是一家专业从事电力系统继电保护及电力自动化的高新技术企业。公司主要生产各种微机综合保护装置,电力保护继电器、电力仪表等产品。公司集研发、设计、生产、销售和服务于一体,致力于为国内外输配电、水利、城建、能源、矿山、化工客户提供一整套从低压到高压、从硬件到软件的系统级整体解决方案和配套服务。公司总部设在上海,全国各地设有办事机构。
三、HJS(ZSJ)-20直流断电延时继电器主要技术参数
1.额定电压;直流220V、110V、48V、24V。
2.保证继电器触点可靠通电动作所需电压不大于70%额定电压。
3.保证继电器可靠断电返回的电压不小于10%额定电压。
4.在额定电压下继电器断电延时返回的延时误差, 在整定范围内不超过0.1%整定值+10ms.
5.在额定电压下继电器断电延时的变差不超过0.1%额定值+10ms。变差是指继电器在同一时间整定点上测量五次,实测时间的**值与最小值之差。
6.两付延时返回的点可各自独立整定,时间整定范围均为0.02 -9.99s,而延时整定值可以不同或相同。
7.在额定电压下继电器消耗的功率不大于4W。
8.继电器允许长期承受110%额定电压。
9.继电器在电压不大于250V、电流不大于1A时间常数T= 5±0.75ms直流有感电路中触点断开容量为30W。
10.继电器各电路与外露的非带电金属部分之间应能乘受有效值2KV,输入电路和触点之间应能承受1㎸ ,50HZ交流电压,历时1min实验,应无绝缘击穿或闪络现象。
11.继电器能在-10 °C- 40 °C温度范围内可靠工作。
12.继电器机械寿命105次,电寿命104次。
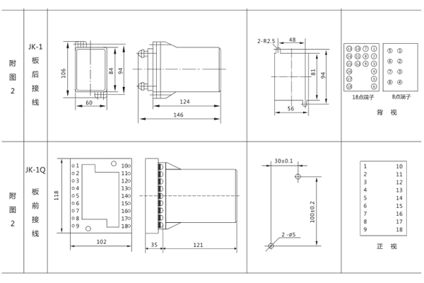
四、HJS(ZSJ)-20直流断电延时继电器外形及开孔尺寸

五、HJS(ZSJ)-20直流断电延时继电器背后接线图

公司介绍:上海上继科技有限公司是一家专业从事电力系统继电保护及智能电网电力自动化产品的研发、设计、生产、销售和服务为一体的高科技公司。拥有资深继电保护专家团队和国内**的检测仪器及校验设备。同时还引用国内外先进技术,来进行技术创新。本公司的产品广泛用于电力、工矿、铁路、建筑等国家重大工程输配变电系统上,产品远销东南亚及中东地区。产品通过国家继电保护及自动化设备质量监督检验中心检测,获得ISO9001国际质量体系认证。“科技创新,诚信务实”是公司的经营理念,本公司以高超的技术支持和对用户高度负责的售后服务赢得了输配电成套企业的信赖,且树立了良好的信誉。
上海上继科技有限公司(专注电力保护继电器生产厂家)销售热线:021-57233089 QQ:1932551438
{以上内容仅供参考,上海上继科技有限公司有最终解释权}
更多继电器精彩文章——JX-21A集成电路信号继电器技术参数及说明书