JZ-Y-414静态中间继电器应用范围及开孔尺寸-上海上继科技有限公司
发布时间:2019-10-23
一、JZ-Y-414静态中间继电器应用范围
JZ-Y-414静态中间继电器采用集成电路原理构成,具有良好的抗振动,适用于各种电力继电保护和自动控制装置中,以增加保护和控制回路的触点容量和触点数量。
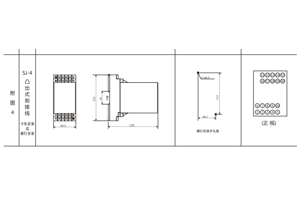
二、JZ-Y-414静态中间继电器外形尺寸及开孔尺寸

三、JZ-Y-414静态中间继电器主要性能
常规100V和220V的电磁型中间继电器所用导线很细,匝数也多,造成容易断线,可靠性低,动作时间和返回时间本系列中l间继电器采用静态电子控制回路控制多个密封进口中间同时导通或断开。 具有以下性能和特点
1、采用高性能密封继电器、防潮、防尘、不断线、可靠性高。
2、动作电压准确,返回系数高,无抖动,功耗低,多个特点同时动作或返回(可控性100%) 。
3、继电器动作后有灯光指示、有电源指示。
4、继电器的电气寿命和机械寿命长。
5、绝缘耐压水平高。触点容量大,触点接触电阻小。
6、抗干流特性好,可使用于强干扰或电源电压质量很差的场所。
四、JZ-Y-414静态中间继电器内部接线图及外引接线图

公司介绍:上海上继科技有限公司是一家专业从事电力系统继电保护及智能电网电力自动化产品的研发、设计、生产、销售和服务为一体的高科技公司。拥有资深继电保护专家团队和国内**的检测仪器及校验设备。同时还引用国内外先进技术,来进行技术创新。本公司的产品广泛用于电力、工矿、铁路、建筑等国家重大工程输配变电系统上,产品远销东南亚及中东地区。产品通过国家继电保护及自动化设备质量监督检验中心检测,获得ISO9001国际质量体系认证。“科技创新,诚信务实”是公司的经营理念,本公司以高超的技术支持和对用户高度负责的售后服务赢得了输配电成套企业的信赖,且树立了良好的信誉。
上海上继科技有限公司(专注电力保护继电器生产厂家)销售热线:021-57233089 QQ:1932551438
{以上内容仅供参考,上海上继科技有限公司有最终解释权}
更多继电器精彩文章——JZ-Y-401静态中间继电器主要用途及主要性能