JZ-J-404MT跳位、合位、电源监视中间继电器使用方法及开孔尺寸-上海上继科技有限公司
发布时间:2019-10-31
一、JZ-J-404MT跳位、合位、电源监视中间继电器使用方法
JZ-J-404MT跳位、合位、电源监视中间继电器适用于发电厂、低压配电系统开关及断路器的合位监视、跳位监视、电源监视、断路监视。本继电器工作电流很小,工作电压通用性强,基本能适合大部分开关及断路器的跳合位监视。
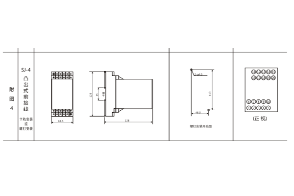
二、JZ-J-404MT跳位、合位、电源监视中间继电器外形尺寸及开孔尺寸

三、JZ-J-404MT跳位、合位、电源监视中间继电器主要性能
3.1 采用高性能密封进口小型中间继电器:防潮、防尘、不断线、可靠性高。
3.2 动作电压准确,返回系数高,无抖动,功耗低,多个接点同时动作或返回(可控性100%) 。
3.3 继电器动作后有灯光指示、电源指示。
3.4 继电器的电器寿命和机械寿命长。
3.5 绝线耐压水平高,触点接触电阻小。
3.6 抗干扰特性好,可使用于强干扰或电源电压质量很差的场所。
3.7 工作电流极小(≤2mA) ,工作电压范围较宽50V~300V(002型或202型) 。
公司介绍:上海上继科技有限公司是一家专业从事电力系统继电保护及智能电网电力自动化产品的研发、设计、生产、销售和服务为一体的高科技公司。拥有资深继电保护专家团队和国内**的检测仪器及校验设备。同时还引用国内外先进技术,来进行技术创新。本公司的产品广泛用于电力、工矿、铁路、建筑等国家重大工程输配变电系统上,产品远销东南亚及中东地区。产品通过国家继电保护及自动化设备质量监督检验中心检测,获得ISO9001国际质量体系认证。“科技创新,诚信务实”是公司的经营理念,本公司以高超的技术支持和对用户高度负责的售后服务赢得了输配电成套企业的信赖,且树立了良好的信誉。
上海上继科技有限公司(专注电力保护继电器生产厂家)销售热线:021-57233089 QQ:1932551438
{以上内容仅供参考,上海上继科技有限公司有最终解释权}
更多继电器精彩文章——JZ-GY-202MT跳位、合位、电源监视中间继电器主要用途及开孔尺寸