中间继电器与电流继电器的区别和应用-上海上继科技有限公司
发布时间:2019-07-23
JZJ-404静态中间继电器采用集成电路原理构成,具有良好的抗振动,适用于各种电力继电保护和自动控制装置中,以增加保护和控制回路的触点容量和触点数量。
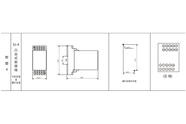
一、JZJ-404中间继电器的接线图

二、JZJ-404中间继电器的开孔尺寸

三、JZJ-404中间继电器的参数
1 环境基准条件
环境温度: 20°C±2°C
相对湿度:45%~74%
大气压力:80Kpa~106Kpa
2 正常使用条件
环境温度:-25°C~+40°C
环境相对湿度:不大于90%
大气压力:80Kpa~110Kpa
存储和运输过程中的极限温度: -25°C~75°C
使用地点的海拔高度:不高于2500米
使用环境的周围介质无爆炸危险品;不含有腐蚀性气体;所含导电尘埃的浓度不应使绝缘水平降低到允许值以下。
3 继电器额定值 额定电压值:48V, 110V, 220V, AC, DC, 380VAC。
4 触点容量 在电压不大于250V,功率因数cosΦ为1.0的交流电路中,可分断10A。
直流:普通型:接通DC220V, 10A;断开DC220V,τ=5mS, 50W负载。
B型:接通DC220V, 10A;断开DC250V, τ=5mS, 500W大容量角空点,极限容量为1500W。
5 保持值 0.7 ~ 1.2倍额定电压 JZ-系列快速中间继电器动作时间和返回时间不大于15mS。
6 功耗 在额定电压下不大于6W。
7 绝线电阻 用1000V揺表测量各引出端子对外壳锁紧螺钉之间绝缘电阻不小于10MΩ。
8 绝缘电压 各引出端子对外壳锁紧螺钉能承受工频2000V,同组触点之间能承受工频1000V,历时一份钟试验,无击穿。
9 电寿命 A型: DC250V回路,切断电流,τ=5mS, 50W, 10⁴次以上;
B型: DC250V回路,切断电流τ=5mS, 500W, 104次以上; 1500W, 103次。
10 机械寿命 触点无负荷300万次以上。

JL-11静态电流继电器(以下简称本继电器)用于发电机、变压器和輸电线的过负新口短路保护装置中作为启动元件。本继电器为集成电路静态型继电器,精度高、功耗小、动作时间快,返回系数高、 整定直观方便、范围宽,提供直流辅助电源后完全可替代电磁型电流继电器,辅助电源采用开关电源变换,交直流通用,工作范围大,从100-300V均能可靠工作。
一、JL-11电流继电器的开孔尺寸

二、JL-11电流继电器的接线图

三、JL-11电流继电器的参数
1、功率消耗
a、交流回路功耗:小于0.5VA(交流额定值5A时)
b、直流回路功耗:见表2

2、整定误差
a、在整定值范围内,整定平均误差的绝对值不大于3% ;平均误差=( 5次测量平均信一整定值)整定值x100%。
b、在基准条件下,同一整定值上测量的5次动作值的**信和最小值应不大于4%。
c、在一10°C~50°C的温度下,任一整定点误差的绝对信应不大于整定值的5%。
d、在輔助电压80~ 110%变化范围内, 任一整定值整定误差的绝对值应不大于4%。
3、动作时间
1. 1倍整定信的动作时间不大于30 m s ; 2信整定值的动作时间不大于20 m s。
4、返回系数: 0.90~0.95。
5、返回时间:不大于27ms。
公司介绍:上海上继科技有限公司是一家专业从事电力系统继电保护及智能电网电力自动化产品的研发、设计、生产、销售和服务为一体的高科技公司。拥有资深继电保护专家团队和国内**的检测仪器及校验设备。同时还引用国内外先进技术,来进行技术创新。本公司的产品广泛用于电力、工矿、铁路、建筑等国家重大工程输配变电系统上,产品远销东南亚及中东地区。产品通过国家继电保护及自动化设备质量监督检验中心检测,获得ISO-9001:2000国际质量体系认证。“科技创新,诚信务实”是公司的经营理念,本公司以高超的技术支持和对用户高度负责的售后服务赢得了输配电成套企业的信赖,且树立了良好的信誉。
上海上继科技有限公司(专注电力保护继电器生产厂家)销售热线:021-57233089 QQ:1932551438
{以上内容仅供参考,上海上继科技有限公司有最终解释权}
更多继电器精彩文章——DJ-131电压继电器技术数据及开孔尺寸