JZY-408静态中间继电器开孔尺寸及技术条件-上海上继科技有限公司
发布时间:2019-07-25
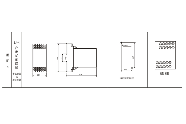
一、JZY-408静态中间继电器
外形及开孔尺寸

二、JZY-408静态中间继电器
型号含义

三、JZY-408静态中间继电器
概述
JZY-408静态中间继电器采用集成电路原理构成,具有良好的抗振动,适用于各种电力继电保护和自动控制装置中,以增加保护和控制回路的触点容量和触点数量
一、JZY-408静态中间继电器
电磁兼容
A,震荡波抗扰度检验符合IEC60255-22-1:1988的规定:III级;
B,静电放电抗扰度检验符合IEC60255-22-2:1996的规定:III级;
C,射频电磁场辐射抗扰度检验符合IEC60255-22-2:1989的规定:III级;
d,电快速瞬变脉冲群抗扰度检验符合IEC60255-22-4:1992的规定:IV级;
e,浪涌抗扰度检验符合IEC60255-22-5:2002的规定:III级;
f,射频传导抗扰度检验符合IEC60255-22-6:2001的规定:III级;
g,工频抗扰度检验符合IEC50255-22-7:2003的规定:A级;
h,工频磁场抗扰度检验符合IEC61000-4-8:1993的规定:V级;
i,脉冲磁场抗扰度检验符合IEC61000-4-9:1993的规定:IV级;
j,阻尼震荡磁场抗扰度检验符合IEC61000-4-10:1993的规定:IV级;
K,谐波电流发射限值检验符合IEC61000-3-2:2001的规定:A级;
l,电压波动和闪烁的限制检验符合IEC61000-3-3:1994的规定;
m,传导发射限值检验符合IEC60255-25:2000的规定。
四、JZY-408静态中间继电器
额定值
电压额定值:额定电压DC:12V、24V、48V、110V、220V; AC:110V、220V、380V。
动作值:动作电压直流应不大于额定电压70%,交流应不大于额定电压75%;
返回值:返回电压应不小于10%额定电压。
动作时间和返回时间大不于15ms。
功率消耗:在额定电压下不大于5W/5VA。
五、JZY-408静态中间继电器
内部接线图及外引接线图

上海上继科技有限公司(专注中间继电器生产厂家)销售热线:021-57233089 QQ:1932551438
(以上内容仅供参考,上海上继科技有限公司有最终解释权}
更多继电器精彩文章→电流继电器与冲击继电器的区别和应用