JZJ-418中间继电器主要性能及特点-上海上继科技有限公司
发布时间:2019-08-01
一、JZJ-418静态中间继电器
特点
1.静态中间继电器采用线圈电压较低的多个优质密封小型继电器组合而成,防潮、防尘、不断线,可靠性高,克服了电磁型中间继电器导线过细易断线的缺点。
2.功耗小,温升低,不需外附大功率电阻,可任意安装及接线方便。
3.继电器触点容量大,工作寿命长。
4.继电器动作后有发光管指示,便于现场观察。
5.延时只需用面板上的拨码开关整定,延时精度高,延时范围可在0.02-5.00S任意整定。
二、JZJ-418静态中间继电器
内部接线图及外引接线图

三、JZJ-418静态中间继电器技术条件
1、环境基准条件
环境温度: 20°C±2°C
相对湿度:45%~74%
大气压力:80Kpa~106Kpa
2、正常使用条件
环境温度:-25°C~+40°C
环境相对湿度:不大于90%
大气压力:80Kpa~110Kpa
存储和运输过程中的极限温度: -25°C~75°C
使用地点的海拔高度:不高于2500米
使用环境的周围介质无爆炸危险品;不含有腐蚀性气体;所含导电尘埃的浓度不应使绝缘水平降低到允许值以下。
3、 继电器额定值 额定电压值:48V, 110V, 220V, AC, DC, 380VAC。
4、触点容量 在电压不大于250V,功率因数cosΦ为1.0的交流电路中,可分断10A。
直流:普通型:接通DC220V, 10A;断开DC220V,τ=5mS, 50W负载。
B型:接通DC220V, 10A;断开DC250V, τ=5mS, 500W大容量角空点,极限容量为1500W。
5、 保持值 0.7 ~ 1.2倍额定电压 JZ-系列快速中间继电器动作时间和返回时间不大于15mS。
6、 功耗 在额定电压下不大于6W。
7、绝线电阻 用1000V揺表测量各引出端子对外壳锁紧螺钉之间绝缘电阻不小于10MΩ。8绝缘电压 各引出端子对外壳锁紧螺钉能承受工频2000V,同组触点之间能承受工频1000V,历时一份钟试验,无击穿。
8、电寿命 A型: DC250V回路,切断电流,τ=5mS, 50W, 10⁴次以上;
B型: DC250V回路,切断电流τ=5mS, 500W, 104次以上; 1500W, 103次。
9、机械寿命 触点无负荷300万次以上。
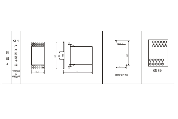
四、JZJ-418静态中间继电器
外形及开孔尺寸

五、JZJ-418静态中间继电器主要性能
常规100V和220V的电磁型中间继电器所用导线很细,匝数也多,造成容易断线,可靠性低,动作时间和返回时间本系列中l间继电器采用静态电子控制回路控制多个密封进口中间同时导通或断开。 具有以下性能和特点
1、采用高性能密封继电器、防潮、防尘、不断线、可靠性高。
2、动作电压准确,返回系数高,无抖动,功耗低,多个特点同时动作或返回(可控性100%) 。
3、继电器动作后有灯光指示、有电源指示。
4、继电器的电气寿命和机械寿命长。
5、绝缘耐压水平高。触点容量大,触点接触电阻小。
6、抗干流特性好,可使用于强干扰或电源电压质量很差的场所
上海上继科技有限公司(专注中间继电器生产厂家)销售热线:021-57233089 QQ:1932551438
(以上内容仅供参考,上海上继科技有限公司有最终解释权}
更多继电器精彩文章→JZY-34静态中间继电器接线图及主要性能