JZJ-419静态中间继电器特点及型号含义-上海上继科技有限公司
发布时间:2019-08-01
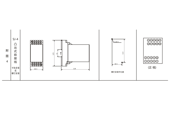
一、JZJ-419静态中间继电器
外形及开孔尺寸

二、JZJ-419静态中间继电器技术条件
1、环境基准条件
环境温度: 20°C±2°C
相对湿度:45%~74%
大气压力:80Kpa~106Kpa
2、正常使用条件
环境温度:-25°C~+40°C
环境相对湿度:不大于90%
大气压力:80Kpa~110Kpa
存储和运输过程中的极限温度: -25°C~75°C
使用地点的海拔高度:不高于2500米
使用环境的周围介质无爆炸危险品;不含有腐蚀性气体;所含导电尘埃的浓度不应使绝缘水平降低到允许值以下。
3、 继电器额定值 额定电压值:48V, 110V, 220V, AC, DC, 380VAC。
4、触点容量 在电压不大于250V,功率因数cosΦ为1.0的交流电路中,可分断10A。
直流:普通型:接通DC220V, 10A;断开DC220V,τ=5mS, 50W负载。
B型:接通DC220V, 10A;断开DC250V, τ=5mS, 500W大容量角空点,极限容量为1500W。
5、 保持值 0.7 ~ 1.2倍额定电压 JZ-系列快速中间继电器动作时间和返回时间不大于15mS。
6、 功耗 在额定电压下不大于6W。
7、绝线电阻 用1000V揺表测量各引出端子对外壳锁紧螺钉之间绝缘电阻不小于10MΩ。8绝缘电压 各引出端子对外壳锁紧螺钉能承受工频2000V,同组触点之间能承受工频1000V,历时一份钟试验,无击穿。
8、电寿命 A型: DC250V回路,切断电流,τ=5mS, 50W, 10⁴次以上;
B型: DC250V回路,切断电流τ=5mS, 500W, 104次以上; 1500W, 103次。
9、机械寿命 触点无负荷300万次以上。
三、JZJ-419静态中间继电器
内部接线图及外引接线图

四、JZJ-419静态中间继电器
特点
1.静态中间继电器采用线圈电压较低的多个优质密封小型继电器组合而成,防潮、防尘、不断线,可靠性高,克服了电磁型中间继电器导线过细易断线的缺点。
2.功耗小,温升低,不需外附大功率电阻,可任意安装及接线方便。
3.继电器触点容量大,工作寿命长。
4.继电器动作后有发光管指示,便于现场观察。
5.延时只需用面板上的拨码开关整定,延时精度高,延时范围可在0.02-5.00S任意整定。
五、JZJ-419静态中间继电器
型号含义
静态中间继电器有JZJ(HZJ)、JZY(HZY)、JZL(HZL)、 JZB (HZB)、JZS(HZS)等型号
其中,JZ和HZ表示静态中间继电器。第三位字母:J表示交流工作电压,Y表示直流工作电压,L表示电流工作,B表示带保持,S表示带延时)
随着继电器所用场合的不断增加,继电器的工艺也在不断改进,静态中间继电器也逐渐朝着轻巧,安装方便的方向发展。RZY、RZYJ、RZF、RZE系列欧规标准的导轨式静态中间继电器,壳体体积小,重量只有200-350g、可无限拼装,触点易于扩展,可直接安装在开关柜35mm导轨条上,从而提高了安装密度,方便接线。
六、JZJ-419静态中间继电器
用途
可调延时中间继电器用于直流或交流操作的各种保护和自动控制线路中,作为辅助继电器,以增加触点数量和触点容量。可根据需要自由调节通电延时或断电延时的时间。
上海上继科技有限公司(专注中间继电器生产厂家)销售热线:021-57233089 QQ:1932551438
(以上内容仅供参考,上海上继科技有限公司有最终解释权}
更多继电器精彩文章→电流继电器与模数化结构继电器的区别和应用